طراحی ازبیلت با مهندسین آرنو: نقشهای دقیق از وضعیت واقعی ساختمان شما
فراتر از نقشههای کاغذی، واقعیت در دستان شما: طراحی ازبیلت با مهندسین آرنو، سند دقیق ساختمان شما!
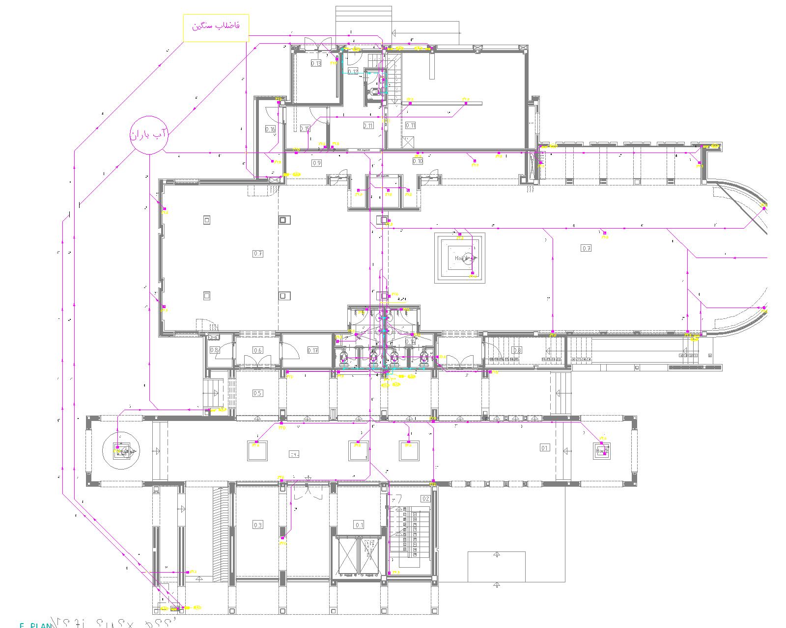
در دنیای ساخت و ساز، گاهی اوقات واقعیت با برنامهها تفاوت دارد. تغییرات ناخواسته یا ضروری در حین اجرا، باعث میشود نقشههای اولیه ساختمان دیگر با وضعیت موجود تطابق نداشته باشند. اینجا است که طراحی ازبیلت به عنوان سندی حیاتی و بیبدیل وارد عمل میشود. طراحی ازبیلت، نقشهای دقیق و به روز شده از وضعیت واقعی یک ساختمان است که پس از اتمام ساخت و ساز تهیه میشود. این نقشهها در مقایسه با نقشههای اولیه (طراحی) که قبل از شروع ساخت ترسیم میشوند، جزئیات دقیقتر و کاملتری را ارائه میدهند و تغییرات ایجاد شده در حین ساخت را نیز به طور کامل نشان میدهند. شرکت مهندسین آرنو با سالها تجربه و سابقه درخشان در زمینه طراحی و اجرای پروژههای ساختمانی، آماده ارائه خدمات طراحی ازبیلت به شما عزیزان با بالاترین کیفیت و مناسبترین قیمت است تا همیشه تصویری شفاف و دقیق از دارایی خود داشته باشید.
اهمیت بیبدیل طراحی ازبیلت: چرا این نقشه برای شما حیاتی است؟
نقشههای ازبیلت به دلایل مختلفی از اهمیت بالایی برخوردار هستند و در واقع، یک سرمایهگذاری ضروری برای هر ملکی محسوب میشوند:
-
مستندسازی دقیق وضعیت فعلی ساختمان:
نقشههای ازبیلت، سندی دقیق و قابل اعتماد از وضعیت فعلی تمام اجزای ساختمان، از جمله دیوارها، تیرها، سقفها، تأسیسات (برقی، مکانیکی، لولهکشی) و … ارائه میدهند. این اطلاعات برای موارد مختلفی مانند تعمیرات و نگهداری، بازسازی، تغییر کاربری، اخذ مجوز و … بسیار حائز اهمیت است و شما را از حدس و گمان بینیاز میکند. -
شناسایی و تطبیق با تغییرات اجرایی:
در بسیاری از موارد، در حین اجرای پروژه، تغییراتی در نقشههای اولیه ایجاد میشود. نقشههای ازبیلت این تغییرات را به طور کامل نشان میدهند و به شما کمک میکنند تا مغایرتهای احتمالی بین نقشههای اولیه و وضعیت واقعی ساختمان را شناسایی کنید. -
ارزیابی عملکرد و پایداری سازه:
با استفاده از نقشههای ازبیلت میتوان وضعیت و عملکرد سازه را در طول زمان ارزیابی کرد. این امر به شناسایی و رفع مشکلات احتمالی قبل از بروز آنها کمک میکند و از بروز خسارات و خطرات احتمالی جلوگیری میکند. -
تسهیل فرآیندهای قانونی و اداری:
در بسیاری از موارد، برای انجام برخی از فرآیندهای قانونی مانند اخذ مجوز پایان کار یا ارائه سند به دادگاه، به نقشههای ازبیلت به روز شده نیاز است. بدون این نقشهها، فرآیندهای اداری با چالش مواجه خواهند شد. -
بهبود فرآیندهای تصمیمگیری هوشمندانه:
دسترسی به اطلاعات دقیق و به روز در مورد وضعیت واقعی ساختمان، به شما کمک میکند تا در مورد تعمیرات، نگهداری، بازسازی و … تصمیمات آگاهانهتر و بهینهتری اتخاذ کنید. این امر به کاهش هزینهها و افزایش طول عمر ساختمان کمک میکند.

محتوای نقشههای ازبیلت: چه جزئیاتی در این نقشهها یافت میشود؟
نقشههای ازبیلت شامل اطلاعات مختلف و کاملی در مورد ساختمان هستند که به صورت فنی و استاندارد ترسیم میشوند:
-
پلانها:
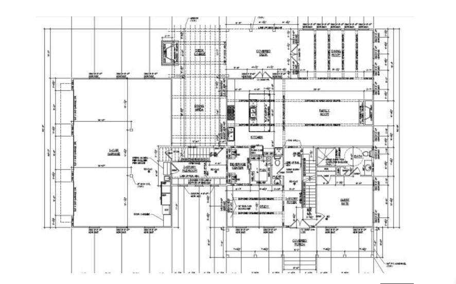
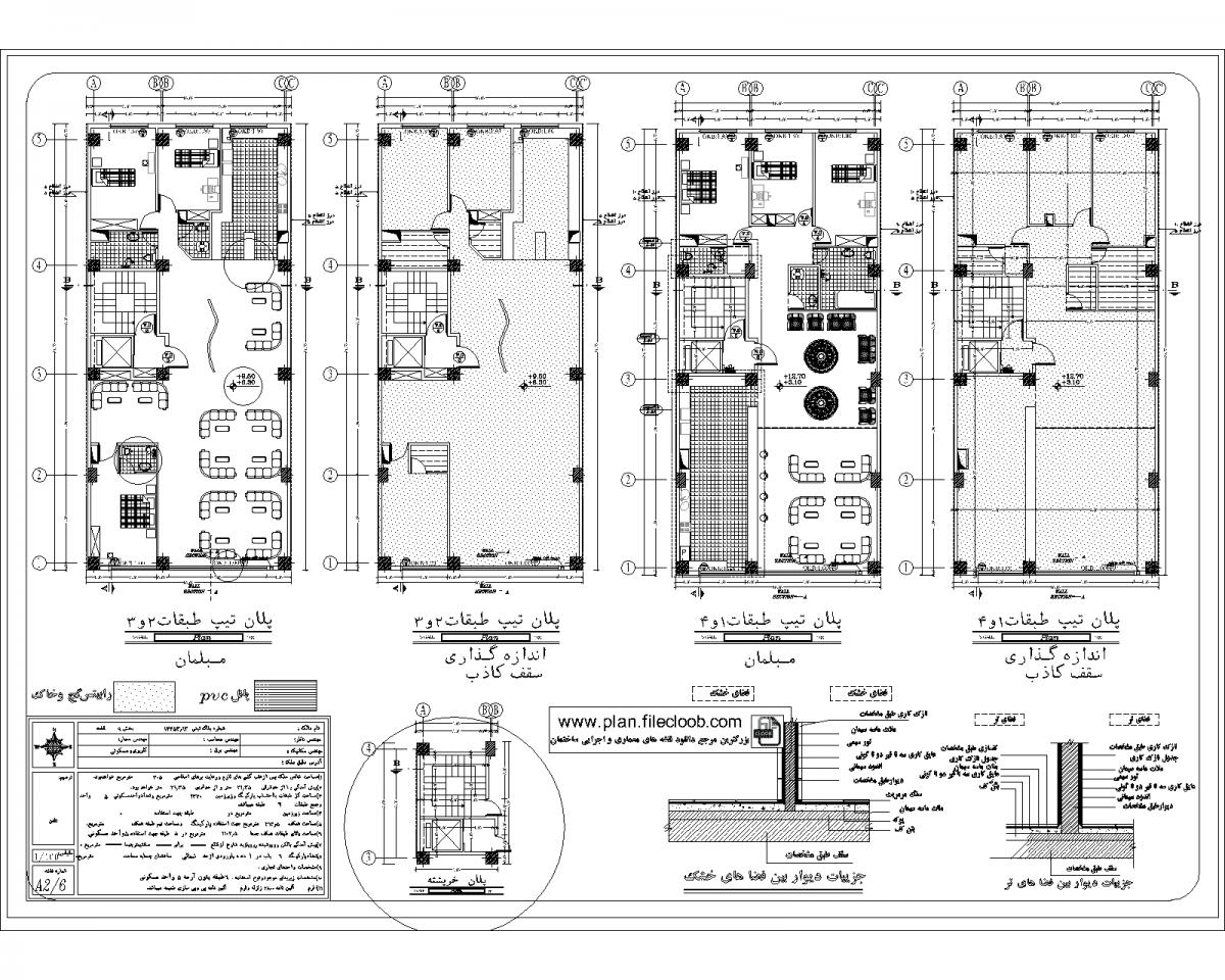
پلانها، نقشههایی هستند که در یک سطح افقی از ساختمان ترسیم میشوند و موقعیت دیوارها، دربها، پنجرهها، ستونها، تیرها و … را نشان میدهند. تمامی جزئیات موقعیت دقیق در این بخش قابل مشاهده است. -
مقاطع:
مقاطع، نقشههایی هستند که از یک بخش از ساختمان به صورت عمودی برش میخورند و جزئیات داخلی دیوارها، سقفها، کفها و … را نشان میدهند. این بخش برای درک عمق و ارتفاعات حیاتی است. -
نماها:
نماها، نقشههایی هستند که نمای بیرونی یا داخلی ساختمان را نشان میدهند و اطلاعاتی در مورد طراحی ظاهری و جزئیات نما ارائه میدهند. -
جزئیات فنی:
جزئیات، نقشههای تکمیلی هستند که به طور جداگانه برای قسمتهای خاص ساختمان مانند اتصالات، فونداسیون، پلهها و … ترسیم میشوند. -
مشخصات فنی مواد و روشها:
مشخصات فنی، شامل اطلاعاتی در مورد مصالح و روشهای ساخت و ساز به کار رفته در ساختمان است که برای بازسازی یا تعمیرات آینده بسیار کاربردی است.
فرآیند تهیه نقشههای ازبیلت در شرکت مهندسین آرنو: دقت و حرفهایگری
تهیه نقشههای ازبیلت معمولاً توسط مهندسان نقشهبرداری یا متخصصان عمران انجام میشود. فرآیند ما در شرکت مهندسین آرنو شامل مراحل دقیق زیر است:
1- جمعآوری اطلاعات اولیه:
در این مرحله، تمام اطلاعات مربوط به ساختمان، از جمله نقشههای اولیه (در صورت وجود)، اسناد و مدارک مربوط به تغییرات ایجاد شده در حین ساخت و … جمعآوری میشود.
2- برداشت میدانی دقیق:
در این مرحله، مهندسان مجرب ما از ساختمان بازدید کرده و با استفاده از ابزارهای پیشرفته مانند متر لیزری، تراز لیزری، دوربین نقشهبرداری و … ابعاد و موقعیت دقیق اجزای مختلف ساختمان را اندازهگیری میکنند.
3- ترسیم نقشههای ازبیلت:
با استفاده از اطلاعات جمعآوری شده و برداشت میدانی دقیق، نقشههای ازبیلت به صورت حرفهای با استفاده از نرمافزارهای تخصصی نقشهبرداری (مانند اتوکد) ترسیم میشوند. ما دقت و ظرافت را سرلوحه کار خود قرار میدهیم.
4- بررسی و تأیید نهایی:
در نهایت، نقشههای ازبیلت توسط مهندسان ذیربط شرکت مهندسین آرنو بررسی و تأیید میشوند تا از صحت و کامل بودن آنها اطمینان حاصل شود.
مزایای استفاده از خدمات طراحی ازبیلت شرکت مهندسین آرنو: انتخابی مطمئن
شرکت مهندسین آرنو با سالها تجربه و سابقه درخشان در زمینه طراحی و اجرای پروژههای ساختمانی، آماده ارائه خدمات طراحی ازبیلت به شما عزیزان است. از جمله مزایای استفاده از خدمات ما میتوان به موارد زیر اشاره کرد:
-
تخصص و تجربه بالا:
مهندسان و متخصصان مجرب شرکت ما با تسلط کامل بر اصول و ضوابط طراحی ازبیلت، نقشههایی دقیق و کامل از ساختمان شما تهیه میکنند که مطابق با آخرین مقررات ملی ساختمان است. -
دقت و ظرافت بینظیر:
ما از جدیدترین ابزارها و نرمافزارهای نقشهبرداری برای تهیه نقشههای ازبیلت استفاده میکنیم و در انجام کار نهایت دقت و ظرافت را به کار میبریم تا شما بهترین نقشه ازبیلت را دریافت کنید. -
سرعت و کیفیت مطلوب:
ما تعهد داریم که در اسرع وقت و با بالاترین کیفیت، نقشههای ازبیلت مورد نظر شما را تهیه و به شما تحویل دهیم. سرعت و کیفیت شعار ماست. -
قیمت مناسب و مقرون به صرفه:
ما به شما خدمات طراحی ازبیلت را با قیمتهای مناسب و مقرون به صرفه ارائه میدهیم تا این خدمت حیاتی برای همه در دسترس باشد. -
خدمات مشتریان متعهد:
ما همواره در دسترس شما هستیم و به تمامی سوالات و نیازهای شما در زمینه طراحی ازبیلت پاسخ خواهیم داد و مشاوره رایگان ارائه میدهیم.
کاربردهای گسترده نقشههای ازبیلت: ابزاری چندمنظوره برای هر پروژه
طراحی ازبیلت، کاربردهای گستردهای در پروژههای مختلف عمرانی و ساختمانی دارد:
-
پروژههای نوسازی و بازسازی:
نقشههای ازبیلت برای ارزیابی وضعیت موجود قبل از شروع عملیات نوسازی یا بازسازی ساختمان، طراحی دقیق تغییرات و کاهش هزینهها با جلوگیری از اشتباهات و اتلاف مصالح، و همچنین افزایش ایمنی کارگران و ساکنین، ضروری هستند. -
پروژههای تعمیرات و نگهداری:
نقشههای ازبیلت به شما کمک میکنند تا به طور دقیق موقعیت و وضعیت اجزای مختلف ساختمان را شناسایی و تعمیرات را اولویتبندی کنید. همچنین برای برآورد دقیق هزینهها، انتخاب پیمانکار مناسب و نظارت بر عملیات تعمیرات حیاتی هستند. -
پروژههای تغییر کاربری:
برای اخذ مجوز تغییر کاربری و تطبیق با ضوابط و مقررات ملی ساختمان و همچنین طراحی و اجرای تغییرات لازم در ساختمان برای مطابقت با کاربری جدید، نقشههای ازبیلت به روز شده ضروری هستند. -
پروژههای ساخت و ساز جدید (“بعد از اجرا”):
در پروژههای ساخت و ساز جدید، نقشههای ازبیلت به عنوان نقشههای “بعد از اجرا” برای مستندسازی وضعیت واقعی ساختمان (به مراجع ذیربط مانند شهرداری و ثبت اسناد)، ارائه به خریداران یا مستاجران (برای جلب اعتماد و شفافیت معامله)، و استفاده در پروژههای بعدی (به عنوان مرجعی دقیق و قابل اعتماد) کاربرد دارند. -
سایر کاربردها:
از نقشههای ازبیلت برای حل اختلافات حقوقی، ارزیابی املاک و مستغلات (برای تعیین ارزش دقیق ملک)، صدور بیمه عمران ساختمان، مدیریت تأسیسات (بهبود مدیریت سیستمهای گرمایشی، سرمایشی، تهویه مطبوع)، و حتی در آموزش و پژوهش برای دانشجویان مهندسی عمران و معماری نیز استفاده میشود.
ازبیلت، سرمایهای برای آینده ساختمان شما
طراحی ازبیلت، فرآیندی ضروری برای مستندسازی دقیق وضعیت واقعی یک ساختمان است. نقشههای ازبیلت کاربردهای مختلفی در پروژههای مختلف عمرانی و ساختمانی دارند و میتوانند مزایای متعددی برای مالکان، مهندسان، مجریان و سایر ذینفعان پروژه به ارمغان بیاورند. استفاده از نقشههای ازبیلت مزایای متعددی از جمله ارائه اطلاعات دقیق و به روز، کاهش هزینهها، افزایش ایمنی، تسهیل فرآیندهای تصمیمگیری، و افزایش ارزش ملک شما را به همراه دارد.



