طراحی فاز 2 با مهندسین آرنو: جزئیات دقیق، اجرای بینقص، کیفیت تضمینشده
طراحی فاز 2، قلب تپنده هر پروژه ساختمانی با تخصص مهندسین آرنو!
در دنیای پیچیده و دقیق ساخت و ساز، پس از ترسیم طرحهای کلی در فاز 1 معماری، نوبت به مرحلهای حیاتی و سرنوشتساز میرسد: طراحی فاز 2. این مرحله به دنبال تکمیل طراحی مقدماتی در فاز 1، جزئیات دقیق و مشخصات فنی لازم برای اجرای پروژه را ارائه میدهد و نقشی کلیدی در اطمینان از کیفیت، کارایی و صرفهجویی در هزینه ساخت ایفا میکند. شرکت مهندسین آرنو با بهرهگیری از تیم مجرب و متخصص خود، خدمات جامعی در زمینه طراحی فاز 2 برای انواع پروژههای ساختمانی ارائه میدهد. ما با تعهد به کیفیت و دقت بالا، تمام مراحل طراحی فاز 2 را به طور کامل و دقیق انجام میدهیم تا پروژه شما از هر نظر بینقص و اصولی باشد.
طراحی فاز 2 چیست و چرا برای پروژههای ساختمانی حیاتی است؟
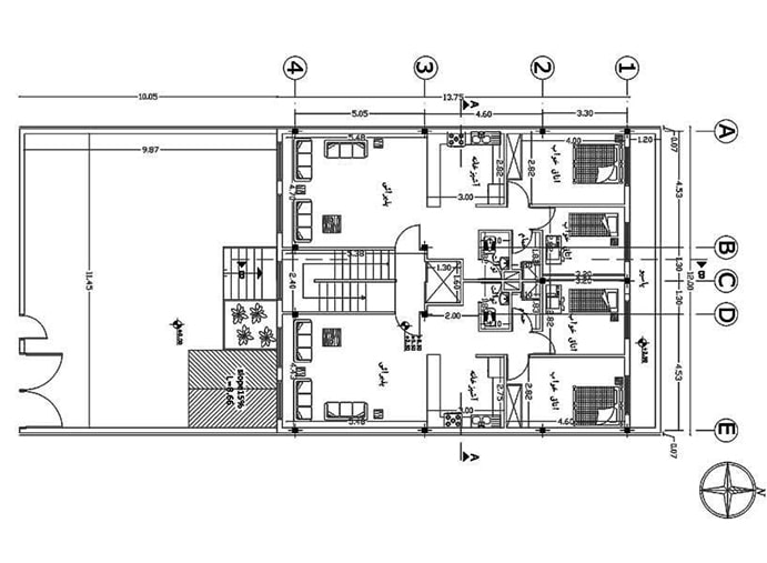
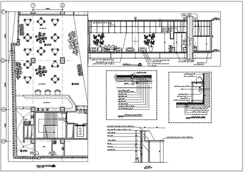
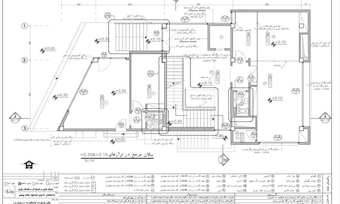
طراحی فاز 2، به معنای تهیه نقشههای اجرایی دقیق و کامل برای تمامی اجزا و سیستمهای یک ساختمان است. این مرحله، طرحهای کلی فاز 1 را به دستورالعملهای فنی و مهندسی قابل اجرا برای کارگاه تبدیل میکند. در واقع، اگر فاز 1 به شما “چه چیزی قرار است ساخته شود” را نشان میدهد، فاز 2 به شما “چگونه آن را بسازید” را به دقیقترین شکل ممکن توضیح میدهد. این فرآیند حیاتی، پایه و اساس کیفیت اجرا و دوام پروژه را تضمین میکند.
مراحل اجرای طراحی فاز 2: از اطلاعات تا اسناد نهایی
طراحی فاز 2 در شرکت مهندسین آرنو شامل مراحل دقیق و منظمی است که هر یک نقش مهمی در کیفیت نهایی ایفا میکنند:
-
جمعآوری اطلاعات جامع و دقیق:
در این مرحله، اطلاعات کامل و دقیقی از پروژه، از جمله نقشههای فاز 1، مشخصات فنی اولیه، الزامات قانونی و استانداردها، و همچنین خواستههای دقیق کارفرما جمعآوری میشود. این مرحله پایه و اساس طراحی دقیق فاز 2 است. -
بررسی و تحلیل عمیق:
اطلاعات جمعآوری شده به طور کامل بررسی و تحلیل میشوند تا هرگونه مغایرت، نقص یا پتانسیل برای بهینهسازی شناسایی و برطرف شود. این تحلیل دقیق، ریسکهای اجرایی را به حداقل میرساند. -
طراحی جزئیات فنی و ترسیم نقشههای اجرایی:
جزئیات دقیق تمام اجزای سازه و سیستمهای مختلف ساختمان، از جمله فونداسیون، اسکلت، دیوارها، سقفها، سیستمهای مکانیکی، برقی و لولهکشی، با دقت و وسواس بسیار طراحی و ترسیم میشوند. این نقشههای اجرایی فاز 2، راهنمای دقیق تیمهای اجرایی در کارگاه خواهند بود. -
تهیه مشخصات فنی (Specifications):
مشخصات فنی دقیق برای تمام مصالح، تجهیزات و روشهای اجرا تهیه میشود. این اسناد تضمین میکنند که فقط متریالهای با کیفیت و روشهای اجرایی استاندارد در پروژه به کار گرفته شوند. -
برآورد دقیق هزینه:
برآوردی دقیق و جزئی از هزینههای ساخت بر اساس نقشهها و مشخصات فنی فاز 2 ارائه میشود. این برآورد به کارفرما کمک میکند تا بودجهبندی دقیقتری داشته باشد و از غافلگیریهای مالی جلوگیری شود. این به معنای دسترسی به بهترین قیمت ساخت با بالاترین کیفیت است. -
تهیه اسناد و مدارک نهایی پروژه:
تمام نقشهها، مشخصات فنی، برآورد هزینه و سایر اسناد و مدارک مربوطه به طور کامل نهایی و در قالب یک مجموعه جامع، جهت شروع عملیات اجرایی به کارفرما ارائه میشوند.
مزایای طراحی فاز 2: تضمین کیفیت و صرفهجویی اقتصادی
طراحی فاز 2 مزایای متعددی را برای پروژههای ساختمانی به ارمغان میآورد، از جمله:
-
افزایش کیفیت ساخت و ساز:
ارائه جزئیات دقیق و مشخصات فنی کامل در فاز 2، به طور قابل توجهی کیفیت ساخت و ساز را ارتقا میدهد و از بروز مشکلاتی در مراحل اجرا جلوگیری میکند، که نتیجه آن ویلایی بادوام و مقاوم خواهد بود. -
کاهش هزینهها در بلندمدت:
با برنامهریزی دقیق و برآورد دقیق هزینهها در فاز 2، میتوان از هدر رفتن مصالح و زمان در مراحل اجرا جلوگیری کرد و در نهایت هزینههای کلی پروژه را به طور چشمگیری کاهش داد. این سرمایهگذاری اولیه، در واقع نوعی صرفهجویی اقتصادی هوشمندانه است. -
بهبود کارایی و سرعت پروژه:
طراحی فاز 2 به هماهنگی بهتر بین تیمهای مختلف طراحی و اجرا کمک میکند و منجر به افزایش کارایی و سرعت پیشرفت پروژه میشود، زیرا تمامی بخشها دستورالعملهای واضحی دارند. -
کاهش خطرات و ریسکهای اجرایی:
شناسایی و برطرف کردن مغایرتها و نقصها در فاز 2، به طور قابل توجهی خطرات مرتبط با پروژه را کاهش میدهد و ایمنی ساخت و ساز را افزایش میدهد. -
افزایش رضایت کارفرما:
ارائه اسناد و مدارک کامل و دقیق در فاز 2، به شفافیت بیشتر پروژه و افزایش رضایت کارفرما کمک میکند، زیرا از همان ابتدا، کارفرما دید کاملی از جزئیات اجرایی خواهد داشت.
چالشهای طراحی فاز 2: نیاز به تخصص و سرمایهگذاری
-
افزایش زمان و هزینه اولیه:
انجام کامل و دقیق طراحی فاز 2 به زمان بیشتری نسبت به فاز 1 نیاز دارد و استخدام متخصصان مجرب برای این مرحله میتواند هزینههای پروژه را افزایش دهد. با این حال، این هزینه در برابر صرفهجوییهای بعدی و کیفیت نهایی ناچیز است. -
نیاز به تخصص بالا:
انجام طراحی فاز 2 به تخصص و دانش فنی بالایی در زمینه مهندسی عمران و معماری نیاز دارد، به همین دلیل انتخاب یک شرکت مهندسی معتبر حیاتی است.
پروژههای مناسب برای طراحی فاز 2: چه زمانی این مرحله ضروری است؟
طراحی فاز 2 برای پروژههای ساختمانی با پیچیدگی متوسط تا بالا، به ویژه پروژههایی که شامل موارد زیر هستند، نه تنها مناسب، بلکه ضروری است:
-
پروژههای بزرگ:
پروژههای بزرگ مانند مجتمعهای مسکونی، تجاری، اداری و یا درمانی به دلیل حجم زیاد کار و جزئیات پیچیده، به طور حتم به طراحی فاز 2 نیاز دارند تا از هرج و مرج و خطاهای اجرایی جلوگیری شود. -
پروژههای حساس و حیاتی:
پروژههایی که از نظر ایمنی یا عملکردی حساس هستند، مانند بیمارستانها، مدارس، یا سازههای عمومی، به طراحی دقیق و جزئیات فنی کامل در فاز 2 نیاز دارند تا استانداردهای ایمنی و عملکردی بالایی را تضمین کنند. -
پروژههای با الزامات خاص:
پروژههایی که دارای الزامات قانونی یا استانداردهای خاصی هستند، مانند پروژههای مقاوم در برابر زلزله یا پروژههای دارای الزامات زیستمحیطی، به طور حتم به طراحی فاز 2 دقیق و کامل نیاز دارند تا تمامی مقررات رعایت شوند.
طراحی فاز 2، گامی ضروری در فرآیند ساخت و ساز است که مزایای متعددی را برای پروژههای مختلف به ارمغان میآورد. با وجود نیاز به زمان و تخصص بیشتر، انجام دقیق و کامل این مرحله، به طور قابل توجهی کیفیت، کارایی و صرفهجویی در هزینه ساخت را ارتقا میدهد و در نهایت منجر به رضایت بیشتر کارفرما میشود.
خدمات جامع شرکت مهندسین آرنو در زمینه طراحی فاز 2: تضمین کیفیت و سرعت
شرکت مهندسین آرنو با بهرهگیری از تیم مجرب و متخصص خود، خدمات جامعی در زمینه طراحی فاز 2 برای انواع پروژههای ساختمانی ارائه میدهد. ما در تیم مهندسین آرنو، با تعهد به کیفیت و دقت بالا، تمام مراحل طراحی فاز 2 را از جمله جمعآوری اطلاعات، بررسی و تحلیل، طراحی جزئیات، تهیه مشخصات فنی، برآورد هزینه و تهیه اسناد و مدارک را به طور کامل و دقیق انجام میدهیم.
مزایای انتخاب شرکت مهندسین آرنو برای طراحی فاز 2 پروژه شما:
-
سابقه درخشان و تجربه موفق:
سابقه درخشان و تجربه موفق در انجام پروژههای مختلف با کاربریهای متنوع، گواه تخصص ما در این زمینه است. -
تیم مجرب و متخصص:
بهرهگیری از مهندسین مجرب و متخصص در زمینه طراحی فاز 2، تضمینکننده کیفیت و دقت پروژههای شماست. -
تعهد به کیفیت و دقت:
ارائه خدمات با بالاترین کیفیت و دقت، اولویت اصلی ما در تمامی مراحل پروژه است. -
قیمت مناسب و رقابتی:
ما خدمات خود را با قیمتهای مناسب و رقابتی ارائه میدهیم تا شما بتوانید بهترین کیفیت را با بهترین قیمت دریافت کنید. -
مدیریت زمان و سرعت در اجرا:
انجام پروژهها در کمترین زمان ممکن، با حفظ دقت و کیفیت، یکی از مزیتهای برجسته همکاری با ما است. -
جلب رضایت کامل مشتریان:
جلب رضایت کامل مشتریان، هدف نهایی ماست و ما در تمامی مراحل در کنار شما خواهیم بود.
پرسشهای متداول درباره طراحی فاز 2:
-
چه زمانی باید از طراحی فاز 2 استفاده کرد؟
طراحی فاز 2 باید پس از تکمیل طراحی مقدماتی در فاز 1 و قبل از شروع عملیات اجرایی پروژه انجام شود. این مرحله، پلی بین ایده و اجراست. -
تفاوت بین طراحی فاز 1 و فاز 2 چیست؟
طراحی فاز 1 بر روی کلیات و طرح کلی پروژه تمرکز دارد و دیدگاه اولیه را ارائه میدهد، در حالی که طراحی فاز 2 به ارائه جزئیات دقیق و مشخصات فنی لازم برای اجرا میپردازد و راهنمای عملیاتی ساخت است. -
چه کسانی در فرآیند طراحی فاز 2 مشارکت میکنند؟
تیم طراحی فاز 2 معمولاً شامل مهندسین عمران، معماران، طراحان MEP (مکانیک، برق، لوله کشی)، متخصصان ژئوتکنیک و سایر متخصصان مرتبط میباشد تا تمامی جنبههای فنی پروژه پوشش داده شود. -
هزینه طراحی فاز 2 چقدر است؟
هزینه طراحی فاز 2 به عوامل مختلفی از جمله مقیاس و پیچیدگی پروژه، نیاز به کارهای میدانی و سابقه و تخصص شرکت طراحی وابسته است. برای برآورد دقیق، میتوانید با ما تماس بگیرید. -
چقدر طول میکشد تا طراحی فاز 2 انجام شود؟
مدت زمان لازم برای انجام طراحی فاز 2 به مقیاس و پیچیدگی پروژه و نیاز به کارهای میدانی وابسته است. تیم ما تلاش میکند تا این فرآیند را در بهینهترین زمان ممکن به اتمام برساند.
با ما تماس بگیرید!
شرکت مهندسین آرنو، با ارائه خدمات طراحی فاز 2 با کیفیت بالا و قیمت مناسب، انتخابی مطمئن برای پروژههای ساختمانی شما خواهد بود. برای دریافت مشاوره رایگان و اطلاعات بیشتر در مورد خدمات طراحی فاز 2 شرکت مهندسین آرنو، همین امروز با کارشناسان ما تماس بگیرید.




